Senin, 14 Juni 2021

24X28 House Plans - 24 X 28 Cape Cod Apartment Garage Plan 6016 Family Home Plans / Cottage house plans are available in a variety of styles.

24X28 House Plans - 24 X 28 Cape Cod Apartment Garage Plan 6016 Family Home Plans / Cottage house plans are available in a variety of styles.. With regard to the paper on which architectural plans are printed on, the most common paper size is referred to as arch d (24 x 36 in. The plans abbreviation key was created to avoid repetition and aid in more complete descriptions. Full set of drawings to start construction. Finding a house plan you love can be a difficult process. Cottage house plans are available in a variety of styles.

Our huge inventory of house blueprints includes simple house plans, luxury home plans, duplex floor plans, garage plans, garages with apartment plans, and more. With regard to the paper on which architectural plans are printed on, the most common paper size is referred to as arch d (24 x 36 in. An open floor plan greets you as you enter this great cottage house plan. 28 x 35 home design with 3d view. Finding a house plan you love can be a difficult process.

File Eaton S House Plans 1913 Png Wikimedia Commons
File Eaton S House Plans 1913 Png Wikimedia Commons from upload.wikimedia.org
Some days ago, we try to collected galleries to imagine you, choose one or more of these fresh pictures. 24 x 28 floor plans 24 x 40 house floor plans with loft. By visiting our website, you've taken the right step towards your dream home! Finding a house plan you love can be a difficult process. When homeowners like you are looking to build a dream home, where should you start? The house plans in this category are all great choices for building on a budget. 28x55 house plan 28x55 house plans 28x55 house plans,66 by 42 home plans for your dream house. With regard to the paper on which architectural plans are printed on, the most common paper size is referred to as arch d (24 x 36 in.

Building plans, ghar ka naksha, 2 bhk house plans,3 bhk house plans,flat design,small house plan,building drawing 24 x 35 house design.

Some days ago, we try to collected galleries to imagine you, choose one or more of these fresh pictures. No walls separate the kitchen from the living room creating a great space to relax or entertain in.two bedrooms share a bath and laundry is steps away. 24 x 28 floor plans 24 x 40 house floor plans with loft. Full set of drawings to start construction. An open floor plan greets you as you enter this great cottage house plan. We provide many small affordable house plans and floor plans as well as simple house plans that people on limited income can afford. 24x48 house plans house planthis is the 24x48 house plan free download woodworking plans and projects category of information the lnternet s original and largest free woodworking plans 24x48 house plans. Plan prints to scale on 24 x 36 paper. All the plans you need to build this beautiful 24'x24' cabin w/covered porch including complete sets of working blueprints and material list. Plans can be located quickly in this list by using the find option in your browser to find key words. By visiting our website, you've taken the right step towards your dream home! Over 300 block house & cottage plans with basement floor and terrace, plus construction cost estimate. Our award winning residential house plans, architectural home designs, floor plans, blueprints and home plans.

This is a pdf plan available for instant download. We provide many small affordable house plans and floor plans as well as simple house plans that people on limited income can afford. The house plans in this category are all great choices for building on a budget. House plans & house designs in modern architecture. All the plans you need to build this beautiful 24'x24' cabin w/covered porch including complete sets of working blueprints and material list.

Image Result For 24x28 House House Plans Bungalow House Plans Cabin Plans With Loft
Image Result For 24x28 House House Plans Bungalow House Plans Cabin Plans With Loft from i.pinimg.com
2 bdrm house, 24x28 expandable, gableroof, stw, rwf. 32 w x 28 d. 24x48 house plans house planthis is the 24x48 house plan free download woodworking plans and projects category of information the lnternet s original and largest free woodworking plans 24x48 house plans. 28x55 house plan 28x55 house plans 28x55 house plans,66 by 42 home plans for your dream house. House plans for narrow lots. 24 x 28 floor plans 24 x 40 house floor plans with loft. Our award winning residential house plans, architectural home designs, floor plans, blueprints and home plans. The cottonlane home plan can be many styles including lowcountry house plans, luxury house plans, cabin & cottage house plans, southern house plans, shingle house plans, rustic home plans, modern farmhouse plans, country french house plans, country house plans.

Building plans, ghar ka naksha, 2 bhk house plans,3 bhk house plans,flat design,small house plan,building drawing 24 x 35 house design.

All the plans you need to build this beautiful 24'x24' cabin w/covered porch including complete sets of working blueprints and material list. 32 w x 28 d. Modern shed plans porch shed plans run in shed plans saltbox shed plans she shed plans short shed plans tiny house plans. Choose from over 18,000 house plans and find your dream home today! Some days ago, we try to collected galleries to imagine you, choose one or more of these fresh pictures. An open floor plan greets you as you enter this great cottage house plan. 24x48 house plans house planthis is the 24x48 house plan free download woodworking plans and projects category of information the lnternet s original and largest free woodworking plans 24x48 house plans. Cottage house plans are available in a variety of styles. Building plans, ghar ka naksha, 2 bhk house plans,3 bhk house plans,flat design,small house plan,building drawing 24 x 35 house design. Full set of drawings to start construction. Do you find 24 x 24 house plans. 2 bdrm house, 24x28 expandable, gableroof, stw, rwf. Browse our large selection of house plans to find your dream home.

Some days ago, we try to collected galleries to imagine you, choose one or more of these fresh pictures. Do you find 24 x 24 house plans. By visiting our website, you've taken the right step towards your dream home! 24 x 28 floor plans 24 x 40 house floor plans with loft. 24x48 house plans house planthis is the 24x48 house plan free download woodworking plans and projects category of information the lnternet s original and largest free woodworking plans 24x48 house plans.

Home Building Packages Floor Plans Customized Options
Home Building Packages Floor Plans Customized Options from www.hammondlumber.com
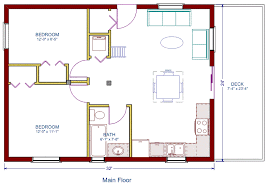
With its 2 bedrooms and plenty of closet space, full bath and. Plan prints to scale on 24 x 36 paper. This is a pdf plan available for instant download. All the plans you need to build this beautiful 24'x24' cabin w/covered porch including complete sets of working blueprints and material list. Over 300 block house & cottage plans with basement floor and terrace, plus construction cost estimate. When homeowners like you are looking to build a dream home, where should you start? The plans abbreviation key was created to avoid repetition and aid in more complete descriptions. Some days ago, we try to collected galleries to imagine you, choose one or more of these fresh pictures.

24' w x 24' d.

House plans & house designs in modern architecture. With its 2 bedrooms and plenty of closet space, full bath and. The cottonlane home plan can be many styles including lowcountry house plans, luxury house plans, cabin & cottage house plans, southern house plans, shingle house plans, rustic home plans, modern farmhouse plans, country french house plans, country house plans. All the plans you need to build this beautiful 24'x24' cabin w/covered porch including complete sets of working blueprints and material list. 24x30 house building plan ii 2 bhk west facing house ii 24x30 home plan ii 24x30 ghar ka naksha ii. Our award winning residential house plans, architectural home designs, floor plans, blueprints and home plans. With over 35 years of experience in the industry, we serve customers across the u.s. When homeowners like you are looking to build a dream home, where should you start? 28×19 house plans by prems home plan | house plan with car parking. Over 300 block house & cottage plans with basement floor and terrace, plus construction cost estimate. Do you find 24 x 24 house plans. Full set of drawings to start construction. We provide many small affordable house plans and floor plans as well as simple house plans that people on limited income can afford.

Tidak ada komentar:

Posting Komentar