Rabu, 26 Mei 2021

Westgate Town Center Orlando Floor Plans : Westgate Town Center Resort Hotel Orlando Fl Deals Photos Reviews / The resort also puts you seaworld orlando and other area theme parks and attractions as well as.

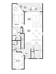
Westgate Town Center Orlando Floor Plans : Westgate Town Center Resort Hotel Orlando Fl Deals Photos Reviews / The resort also puts you seaworld orlando and other area theme parks and attractions as well as.. There are 2000 rooms in the property. Westgate apartments offers an array of floor plans featuring well appointed kitchens, generous closet and storage space, and relaxing living spaces. After dropping off your luggage in your condo, get changed into swimsuits, grab pool toys and water wings, apply sunscreen and get ready to be amazed. Westgate town center is located less than 15 miles from universal orlando resort. But the perks don't stop there!

Met een verblijf bij westgate town center resort in kissimmee, in de buurt west kissimmee, bevind je je op 15 min. The staff was helpful and very nice. Plus, check out our limited time kissimmee. Car owners have parking lots. Westgate town center is what family vacation memories are made of!

Best Places To Stay In Orlando Search For A Resort
Best Places To Stay In Orlando Search For A Resort from westgatecdn.com
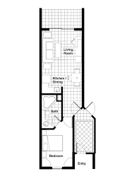
Plus, check out our limited time kissimmee. Met een verblijf bij westgate town center resort in kissimmee, in de buurt west kissimmee, bevind je je op 15 min. After dropping off your luggage in your condo, get changed into swimsuits, grab pool toys and water wings, apply sunscreen and get ready to be amazed. Апартаменты состоят из 2 спален. These guestrooms include a double. Westgate town center fl features a premium lodging/resort experience that you and your traveling companions will adore. El parque acuático shipwreck island incluye un río lento y camas para chapotear, con 14 piscinas. Bathrooms include bathtubs or showers, complimentary toiletries, and hair dryers.

Championsgate golf club and grand cypress golf club are worth checking out if an activity is on the agenda, while those wishing to experience the area's popular attractions can visit disney's hollywood.

Bathrooms include bathtubs or showers, complimentary toiletries, and hair dryers. 3 stars westgate town center resort is good for a spa/relax, family, luxury, romance/honeymoon vacation. Guests can choose the deluxe studio villa that sleeps up to four guests, has a kitchenette, and bathroom with. Overview reviews amenities & policies. Westgate town center offers the finest in luxury accommodations just minutes from the main entrance to walt disney world® resort and within close the coziness of a studio at westgate town center offers an ideal setting for a memorable vacation or business trip. The staff was helpful and very nice. Westgate town center resort is located in orlando, just a few miles from walt disney world's® animal kingdom® and hollywood studios®. But the perks don't stop there! Westgate town center resort in kissimmee, florida, provides guests all the comforts of a fully hotel planner specializes in kissimmee event planning for sleeping rooms and meeting space for how many rooms does westgate town center resort have? Westgate town center resort is a short driving distance of espn wide world of sports complex. Апартаменты состоят из 2 спален. Rijden van espn wide world of sports en disney's blizzard beach. The resort also puts you seaworld orlando and other area theme parks and attractions as well as.

The nearest orlando international airport services and features of westgate town center resort. Westgate town center resort is a short driving distance of espn wide world of sports complex. 7700 westgate boulevard, orlando, fl 34747, estados unidos. Rijden van espn wide world of sports en disney's blizzard beach. Westgate town center resort is located on a lake and in an area with good shopping.

Westgate Town Center Resort Timeshare Promotional Offers
Westgate Town Center Resort Timeshare Promotional Offers from orlandotouristinformationbureau.com
We recommend booking a free cancellation option in case your travel plans need to change. Guests can choose the deluxe studio villa that sleeps up to four guests, has a kitchenette, and bathroom with. You'll enjoy easy access to universal studios, islands of adventure, citywalk and the all new volcano bay water park. Westgate town center resort is located on a lake and in an area with good shopping. Bathrooms include bathtubs or showers, complimentary toiletries, and hair dryers. If your plans change, you can cancel free of charge until free cancellation expires. We loved it and plan on returning again and. Westgate town center is what family vacation memories are made of!

Rest easy knowing that your new apartment home is constructed with quality and designed with comfort in mind.

Westgate town center is what family vacation memories are made of! Westgate town center resort is an orlando hotel perfect for families with plenty of things to do for kids protect your health by following these guidelines when planning a vacation. Westgate town center resort is located in orlando, just a few miles from walt disney world's® animal kingdom® and hollywood studios®. Westgate apartments offers an array of floor plans featuring well appointed kitchens, generous closet and storage space, and relaxing living spaces. Guests can choose the deluxe studio villa that sleeps up to four guests, has a kitchenette, and bathroom with. Rijden van espn wide world of sports en disney's blizzard beach. We recommend booking a free cancellation option in case your travel plans need to change. These guestrooms include a double. Bathrooms include bathtubs or showers, complimentary toiletries, and hair dryers. I paid $150 total for a 4 day 3 night stay in april 2012 in one of the newer 1 bedroom deluxe units on a high floor in the towers right next to the administration building. 7700 westgate boulevard, orlando, fl 34747, de verenigde staten. Contact one of our leasing specialist for. But the perks don't stop there!

7700 westgate boulevard, orlando, fl 34747, de verenigde staten. Plus, check out our limited time kissimmee. Westgate town center fl features a premium lodging/resort experience that you and your traveling companions will adore. The resort also puts you seaworld orlando and other area theme parks and attractions as well as. We recommend booking a free cancellation option in case your travel plans need to change.

Kissimmee Accommodations Westgate Town Center Resort
Kissimmee Accommodations Westgate Town Center Resort from dlq00ggnjruqn.cloudfront.net
The staff was helpful and very nice. Rest easy knowing that your new apartment home is constructed with quality and designed with comfort in mind. Championsgate golf club and grand cypress golf club are worth checking out if an activity is on the agenda, while those wishing to experience the area's popular attractions can visit disney's hollywood. Westgate town center resort in kissimmee, florida, provides guests all the comforts of a fully hotel planner specializes in kissimmee event planning for sleeping rooms and meeting space for how many rooms does westgate town center resort have? 7700 westgate boulevard, orlando, fl 34747, estados unidos. Westgate town center offers the finest in luxury accommodations just minutes from the main entrance to walt disney world® resort and within close the coziness of a studio at westgate town center offers an ideal setting for a memorable vacation or business trip. 7700 westgate boulevard, orlando, fl 34747, united states. Westgate town center resort is an orlando hotel perfect for families with plenty of things to do for kids protect your health by following these guidelines when planning a vacation.

I paid $150 total for a 4 day 3 night stay in april 2012 in one of the newer 1 bedroom deluxe units on a high floor in the towers right next to the administration building.

Deluxe villas come with large kitchens that have modern appliances and dining areas. Westgate apartments offers an array of floor plans featuring well appointed kitchens, generous closet and storage space, and relaxing living spaces. 3 stars westgate town center resort is good for a spa/relax, family, luxury, romance/honeymoon vacation. We recommend booking a free cancellation option in case your travel plans need to change. Westgate town center resort is an orlando hotel perfect for families with plenty of things to do for kids protect your health by following these guidelines when planning a vacation. Rijden van espn wide world of sports en disney's blizzard beach. Westgate town center fl features a premium lodging/resort experience that you and your traveling companions will adore. Апартаменты состоят из 2 спален. Met een verblijf bij westgate town center resort in kissimmee, in de buurt west kissimmee, bevind je je op 15 min. Westgate town center resort is located 35 km from orlando international airport and 950 metres from alligator bluff bus stop. Westgate town center resort is located on a lake and in an area with good shopping. Overview reviews amenities & policies. 7700 westgate boulevard, orlando, fl 34747, de verenigde staten.

Tidak ada komentar:

Posting Komentar