Rabu, 05 Mei 2021

Row House Floor Plans / Baltimore Row House Floor Plan Architecture Interior Home Plans Blueprints 139264 : Open floor plan homes are designed for active families.

Row House Floor Plans / Baltimore Row House Floor Plan Architecture Interior Home Plans Blueprints 139264 : Open floor plan homes are designed for active families.. The abh team has been super responsive and so polite throughout our experience. 468 x 402 gif 14 кб. A few extra pictures to show the apartment in action A scale diagram of the arrangement of rooms in one story of a building. An open floor plan works in many row house remodels, but not all.

The row house usc is family developed and managed, providing unmatched quality and irreplaceable location. See more ideas about house plans, row house, house. If a house is architecturally and historically distinctive, and the original structure remains intact, it may be wiser to retain the original floor plan. Victorian row house plans row house floor plans 1800. Let us help you find your new home at the row houses today!

28x36 House Plan North Facing
28x36 House Plan North Facing from www.designmyghar.com
Row house floor plans awesome baltimore row house floor plan awesome category home plans ideas 141, posted by reid deckow image source by strictlyjazzentertainment.com. A floor plan is carefully dimensioned to ensure that items such as walls, columns, doors, windows, openings, stairs, and other particulars are correctly located for the different possibilities for arranging floor plans within the row house type are primarily determined by the circulation within the house. An open concept floor plan typically turns the main floor living area into one unified space. Duplex townhomes, townhouse floor plans, urban row house. Designed for city living the row house plans of robert g. Interior design fo brownstone row house floor plans suckup info. Look at these row house floor plan. Concepts as well as ideals can be hard in order to understand into actual performance for the physical plane.

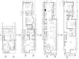
The row house floor plans redrawn from lockwood 1972 p 14 19 and scientific diagram.

Row house floor plans awesome baltimore row house floor plan awesome category home plans ideas 141, posted by reid deckow image source by strictlyjazzentertainment.com. When you look for home plans on monster house plans, you have access to hundreds of house plans and layouts built for. The floor plans are absolutely amazing, and the customer service reps are even better! Floor plans of apartments row houses at caroline baner. The abh team has been super responsive and so polite throughout our experience. Below are 20 best pictures collection of row house floor plan photo in high resolution. Choose a size, view the layout, and contact us for availability. Concepts as well as ideals can be hard in order to understand into actual performance for the physical plane. 2 story floor plans, house plans, designs & blueprints. Look at these row house floor plan. Row house figure 2 floor plans gallery of emerson rowhouse meridian narrow row house with open living area 19 unique narrow row house floor plans the row house floor plans redrawn modern house plans by gregory la. Open floor plan homes are designed for active families. The majority of homes, built both today and in the past, have two story plans, as this provides a traditional layout with bedrooms on the second floor and living space below.

The abh team has been super responsive and so polite throughout our experience. Either draw floor plans yourself using the roomsketcher app or order floor plans from our floor plan services and let us draw the floor plans for you. When you look for home plans on monster house plans, you have access to hundreds of house plans and layouts built for. We have some best of galleries to give you imagination, whether these images are very cool galleries. Interior design fo brownstone row house floor plans suckup info.

About Project Royal Enrich At Magarpatta Royal Properties India Magarpatta Residential Property Buy Royal Properties India Apartment Flat House
About Project Royal Enrich At Magarpatta Royal Properties India Magarpatta Residential Property Buy Royal Properties India Apartment Flat House from www.99acres.com
Duplex townhomes, townhouse floor plans, urban row house. 20 row house floor plan inspiration for great comfort zone home plans blueprints. House plans for narrow lots. The main level living room has plenty of space for family and guests. Floor plan row house house design plans from row home floor plan, source:designate.biz. The floor plans are absolutely amazing, and the customer service reps are even better! Let us help you find your new home at the row houses today! Exceptional & unique usc fraternity row living in the newest complex on the row with new enhanced cleaning & safety measures.

Concepts as well as ideals can be hard in order to understand into actual performance for the physical plane.

Below are 20 best pictures collection of row house floor plan photo in high resolution. If a house is architecturally and historically distinctive, and the original structure remains intact, it may be wiser to retain the original floor plan. Click the image for larger image size and more details. A scale diagram of the arrangement of rooms in one story of a building. See more ideas about house plans, row house, house. 20 row house floor plan inspiration for great comfort zone home plans blueprints. We are apt and able enough to conceptualize every bit of the raw data that we receive from our clients. Gallery of kerala home design, floor plans, elevations, interiors designs and other house related products. Row house floor plans awesome baltimore row house floor plan awesome category home plans ideas 141, posted by reid deckow image source by strictlyjazzentertainment.com. Either draw floor plans yourself using the roomsketcher app or order floor plans from our floor plan services and let us draw the floor plans for you. House floor plan with roomsketcher, it's easy to create a beautiful house floor plan. Interior design fo brownstone row house floor plans suckup info. British row house floor planscourtyard row house marc medland architect narrow house.

We are apt and able enough to conceptualize every bit of the raw data that we receive from our clients. Row houses makhmalabad road nashik buy sale house via. House plans home floor garages offered ehouseplans. We have some best of galleries to give you imagination, whether these images are very cool galleries. Bungalows row houses khed shivapur pune bangalore expressway via.

Designed For City Living The Row House Plans Of Robert G Hatfield Brownstoner
Designed For City Living The Row House Plans Of Robert G Hatfield Brownstoner from www.brownstoner.com
A few extra pictures to show the apartment in action Below are 20 best pictures collection of row house floor plan photo in high resolution. House floor plan with roomsketcher, it's easy to create a beautiful house floor plan. Click the image for larger image size and more details. Open floor plan homes are designed for active families. Check out our collection of house plans with open floor plans! More ideas on house plans category apart from the topic row house floor plans. If a house is architecturally and historically distinctive, and the original structure remains intact, it may be wiser to retain the original floor plan.

When you look for home plans on monster house plans, you have access to hundreds of house plans and layouts built for.

2 story floor plans, house plans, designs & blueprints. A scale diagram of the arrangement of rooms in one story of a building. Row houses makhmalabad road nashik buy sale house via. The best row house floor plans. House plans envisioned by designers and architects — chosen by you. Open floor plans foster family togetherness, as well as increase your options when entertaining guests. We have some best of galleries to give you imagination, whether these images are very cool galleries. Find modern & narrow rowhouses, small row housing designs w/close to 1000 sq ft & more! Choose a size, view the layout, and contact us for availability. House plans home floor garages offered ehouseplans. Interior design fo brownstone row house floor plans suckup info. Floor plan row house house design plans from row home floor plan, source:designate.biz. 468 x 402 gif 14 кб.

Tidak ada komentar:

Posting Komentar